26th Floor - Half Floor
Alveo Financial Tower
Last Updated:
Office Space Unit
For Rent / Lease
Take the opportunity to lease this premium office space in Alveo Financial Tower--a Class A building along Ayala Avenue, Makati City
It is a half-floor handed over in bare-shell condition
Customize your workpsace according to your branding and operational needs
The building is equipped with modern technical specifications and you can operate 24/7 with top safety and security systems for your business.
Alveo Financial Tower is located nearby Ayala Triangle, Makati Medical Center, RCBC Plaza, and Ayala North Exchange. See full building info here.
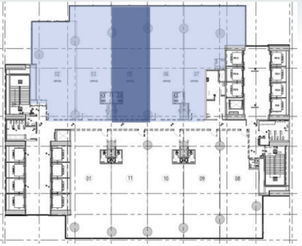
The whole unit is 579.00 square meters, you can take partial-- units can be subdivided into 80.00-90.00 square meters (refer to floor plan).
Floor | Size | Space Use | Handover | Rent | Building Dues | AC Charges | Total Monthly Rent | Term |
|---|---|---|---|---|---|---|---|---|
26th Floor - Half Floor | 579.00 sqm | Office | Bare Shell | PHP 800.00 / sqm | PHP 210.00 / sqm | Metered | PHP 463,200.00 / month | 3-10 years |
DISCLAIMER:
Published rents displayed here are subject to change. Please communicate for a formal proposal from the landlord. Rental rates can be negotiated through an Official Letter of Intent to Lease.
Find it in the Map
What Else Can We Help You With
Aside from the availability of this building, you can always consult with us other information that you do not find here. We can prepare your company a more in-depth presentation of the office property, find similar buildings to compare with, prepare cash flow financial analysis, request for viewings, floor layouts, and many more. It is always recommended to consult when you are looking for your office space so your search will be guided objectively and professionally. Our office acquisition services are free as we get our service fees from the office building developer and landlords. This however does not necessarily mean we are representing them. Our end-goal is to assist occupiers in finding the best space that will match their needs. We do this by presenting all the options that we find available in the market and suitable to your requirement. This will guarantee your company a better search and a clearer overview of the office space market making it easier for you to decide on the best space for your business and operations. Know more of our Office Acquisition Services here.
Nearby Office Spaces

As-is Where-is Office Space

As-is Where-is Office Space

As-is Where-is Office Space

As-is Where-is Office Space
Building 1 - 2nd Floor
in
La Fuerza Plaza I & II
Size:
576.53 sqm
Rent Rate:
PHP 750.00 / sqm

Office Space for Rent in Alveo Financial Tower, Ayala Avenue, Makati

27th floor

Office Space for Rent in Alveo Financial Tower, Ayala Avenue, Makati
27th Floor - Whole Floor
in
Alveo Financial Tower
Size:
1,147.00 sqm
Rent Rate:
PHP 1,100.00 / sqm

Bare Shell unit

Bare Shell unit

Bare Shell unit

Bare Shell unit
32nd Floor - Half Floor
in
Alveo Financial Tower
Size:
568.00 sqm
Rent Rate:
PHP 900.00 / sqm




32nd Floor
in
PBCOM Tower
Size:
1444.76 sqm
Rent Rate:
PHP 980.00 / sqm




6th Floor (whole floor)
in
Insular Life Building Makati
Size:
1,618.85 sqm
Rent Rate:
PHP 1,000.00 / sqm




30th Floor
in
Ayala Triangle Gardens Tower 2
Size:
916.00 sqm
Rent Rate:
PHP 2,400.00 / sqm




48th Floor - Whole Floor
in
Alveo Financial Tower
Size:
1,630.00 sqm
Rent Rate:
PHP 500.00 / sqm
















